Home Our Basis Services Sample Plan Our Family Price Submit Review House Plans Contact Reviews About Purchase-Info Need For Custom Plans

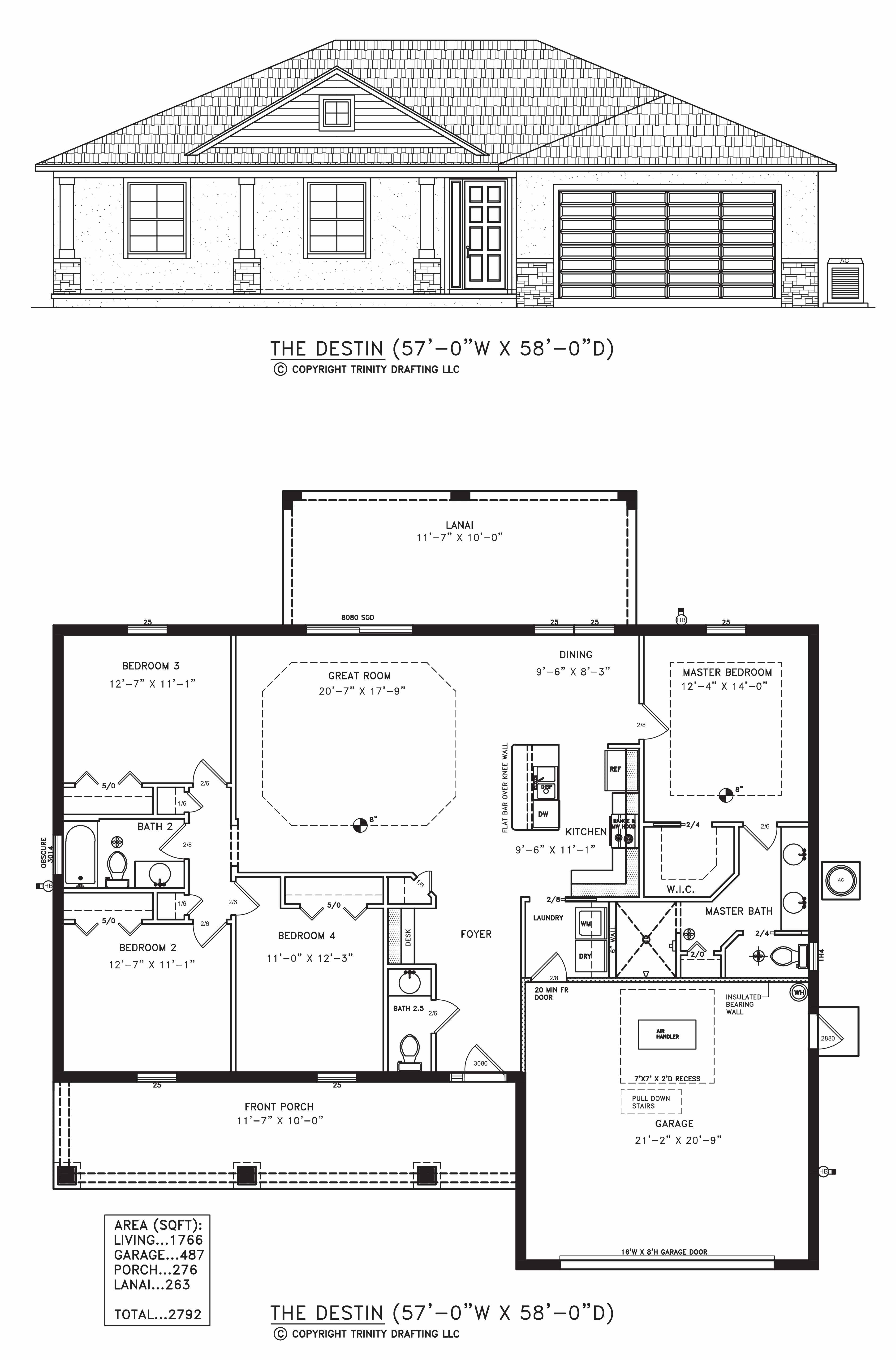
The Destin

 

PREVIOUS PLAN

NEXT PLAN

PRICE FOR THIS PLAN PDF OF THIS PLAN

 

 

Jody Willis
Trinity Drafting
813.482.2463
mail@trinitydrafting.com